Planos Arquitectónicos
¡Bienvenido a los servicios de planos arquitectónicos de Juan Vaca!
En nuestra práctica profesional, nos dedicamos a transformar tus ideas en realidad tangible a través de nuestros servicios de diseño arquitectónico. Ya sea que estés construyendo desde cero, renovando una propiedad existente o buscando una expansión, estamos aquí para ofrecerte soluciones innovadoras y personalizadas que se adapten a tus necesidades y superen tus expectativas


Nuestro equipo de expertos en diseño arquitectónico trabaja en estrecha colaboración contigo para comprender tus visiones y objetivos únicos. Utilizamos nuestra experiencia y creatividad para traducir tus ideas en planos arquitectónicos detallados y precisos que sirvan como la hoja de ruta para tu proyecto.
Nuestros servicios de planos arquitectónicos incluyen:
- Diseño conceptual: Trabajamos contigo para desarrollar conceptos y esquemas iniciales que capturen la visión y el estilo que deseas para tu proyecto.
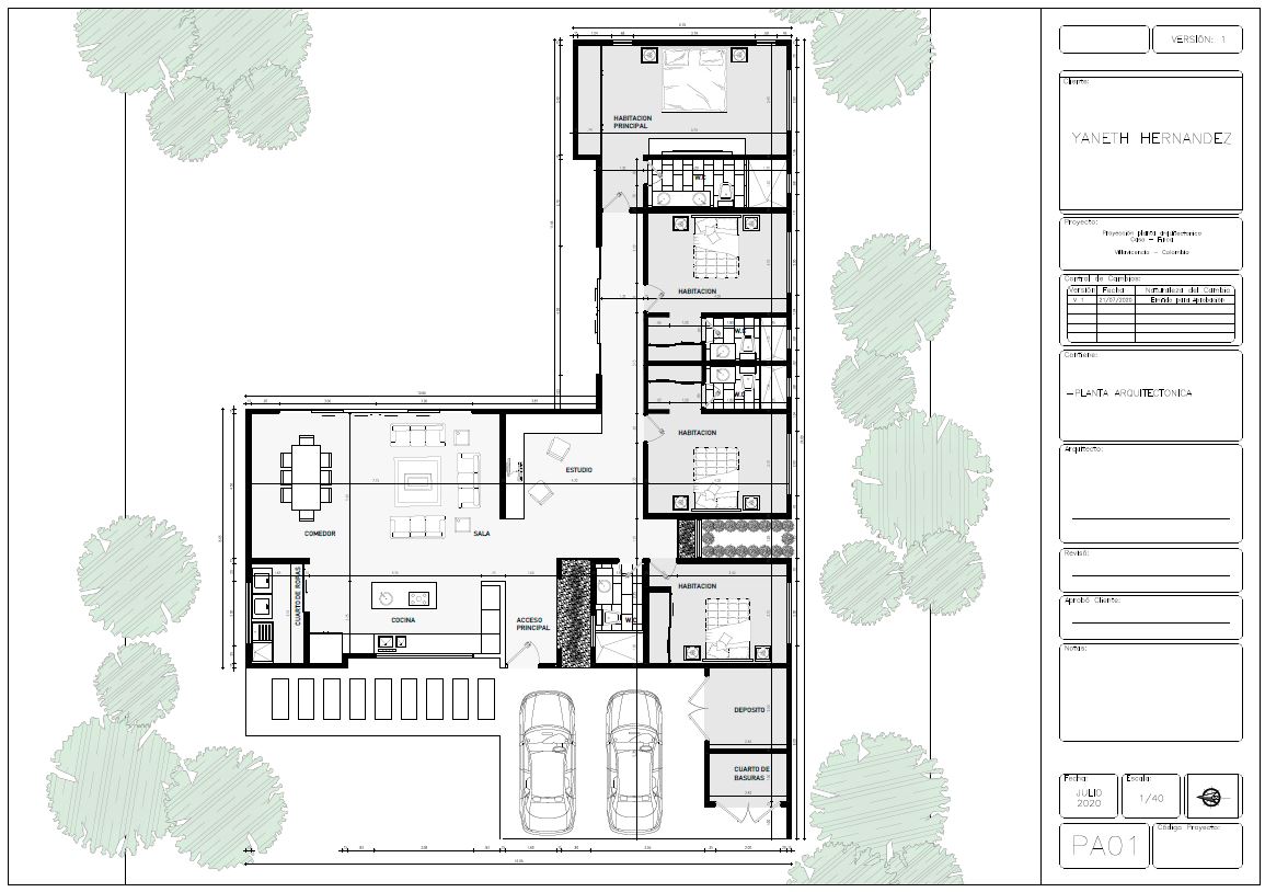
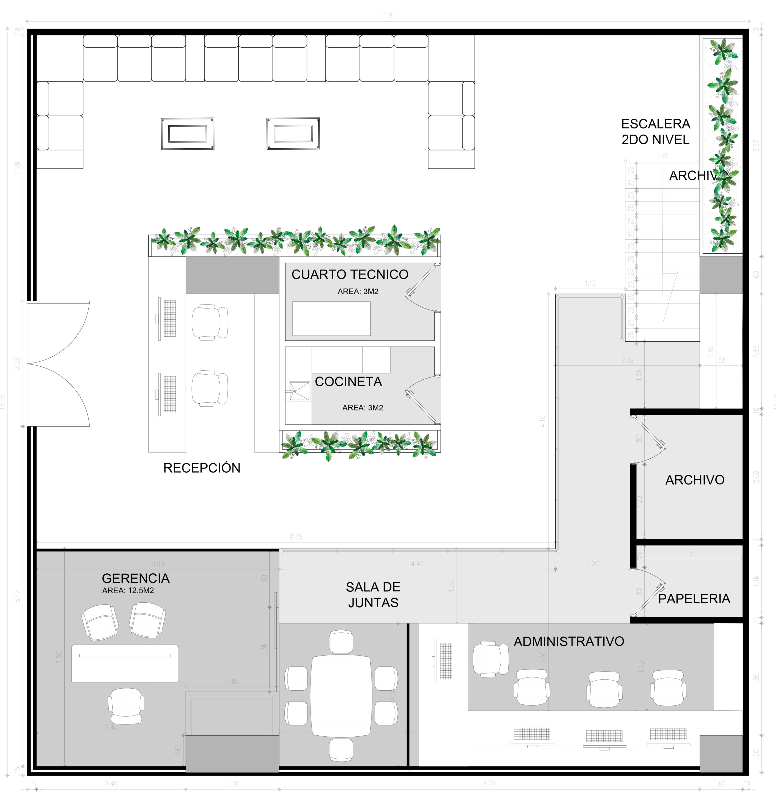
- Planos de planta: Creamos planos detallados de planta que muestran la distribución de los espacios interiores, asegurando una funcionalidad óptima y un flujo eficiente.
- Planos de elevación: Proporcionamos planos de elevación que ilustran la apariencia exterior de tu proyecto, mostrando detalles como materiales, texturas y características arquitectónicas.
- Planos constructivos: Preparamos planos constructivos completos que contienen todos los detalles necesarios para la construcción, incluyendo dimensiones, especificaciones de materiales y detalles estructurales.