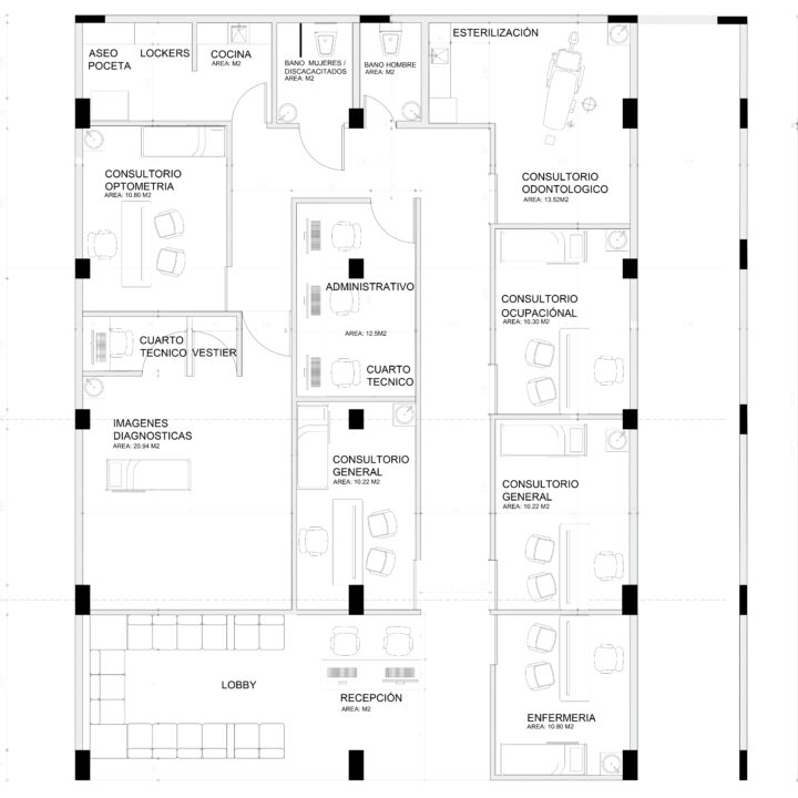
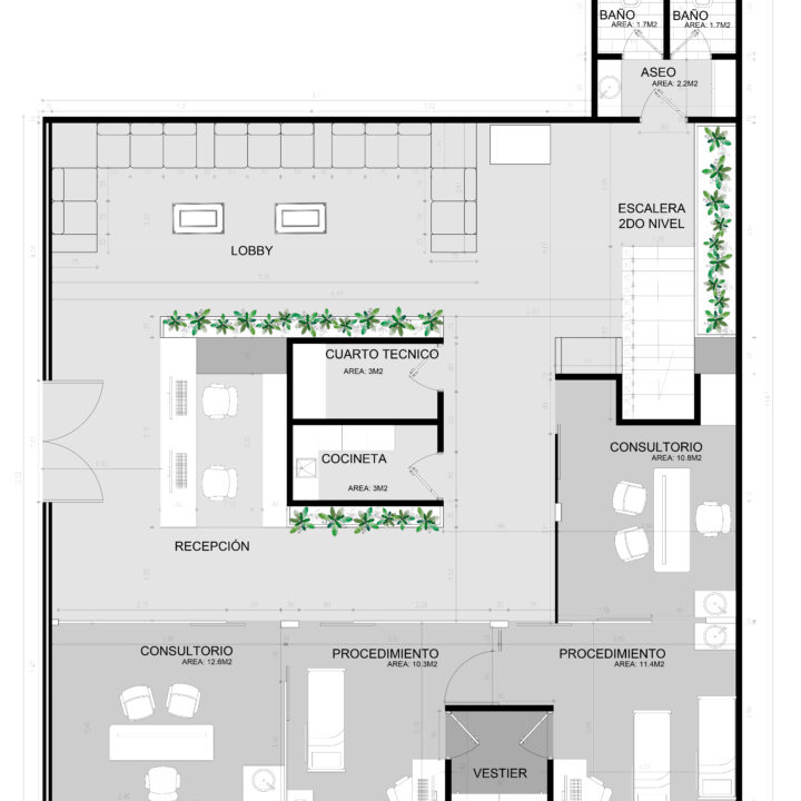
Diseño clínica cardiovascular, adecuación mezanine para aumentar el área, general un recorrido funcional que conecte todos las zonas de servicio con las administrativas por medio de circulaciones, permanecias y puntos fijos.
sensación amplitud, luz y zonas privadas
arcquitecto:
Tipo de Proyecto:
Duración:
cliente:
Concepto:
Fecha:
Diseño en detalles
En diseño, incorporamos características del mundo natural a espacios construidos, como agua, vegetación y luz natural, o elementos como madera y piedra. Fomentar el uso de sistemas y procesos naturales en el diseño permite la exposición a la naturaleza y, a su vez, estos enfoques de diseño mejoran la salud y el bienestar. Hay una serie de posibles beneficios, que incluyen una reducción de la variabilidad del ritmo cardíaco y del pulso, una disminución de la presión arterial y una mayor actividad en nuestro sistema nervioso, por nombrar algunos.
Con el tiempo, nuestras conexiones con el mundo natural divergieron en paralelo con los avances tecnológicos. Los avances de los siglos XIX y XX cambiaron fundamentalmente la forma en que las personas interactúan con la naturaleza. Protegidos de los elementos, pasábamos cada vez más tiempo en el interior. Hoy en día, la mayoría de las personas pasan entre el 80 y el 90 % de su tiempo en interiores, moviéndose entre sus hogares y sus lugares de trabajo. Mientras los diseñadores de interiores adoptan la biofilia.
[30m2]
Oficinas
[22m2]
baños
[28m2]
Espacio de trabajo
[15m2]
área cocina
Increibles Resultados
Al establecer experiencias multisensoriales, podemos diseñar interiores que resuenen en todas las edades y grupos demográficos. Estas habitaciones y espacios nos conectan con la naturaleza como una forma comprobada de inspirarnos, aumentar nuestra productividad y crear un mayor bienestar. Más allá de estos beneficios, al reducir el estrés y mejorar la creatividad, también podemos acelerar la curación. En nuestras ciudades cada vez más urbanizadas, la biofilia aboga por un enfoque más humanista del diseño. El resultado son interiores biofílicos que celebran cómo vivimos, trabajamos y aprendemos con la naturaleza. El término se traduce como “el amor por los seres vivos”








